Wohnung (Ziegel) Verkauf Budapest XXIII. bezirk - Kertvárosi körút (5ös)

Verkauf Budapest XXIII. kerület Wohnung (Ziegel)
57 m2Wohnfläche 3 Zimmer
82 750 000 HUF Kaufpreis
393277ID nummer
Weitere Informationen

Hof Ansicht

Neubau Zustand

Tégla Struktur

4 m2 Balkon/terrasse

Wärmepumpe Heizung

voller Komfort Komfort

Stellplatz Parkplatz

Etage 1

Es gibt nicht Aufzug

Gut Öffentliche Verkehrsmittel

Amerikanische Küche

Es gibt nicht Zugang zum garten

2026 Baujahr

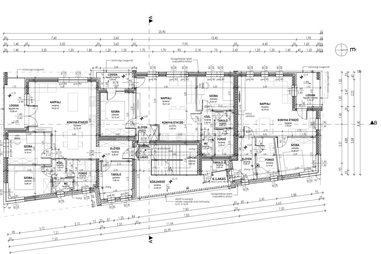
Eladó egy új építésű, összesen 6 lakásból álló társasház valamennyi lakása.

Az ingatlan Soroksár új kertvárosi lakóparkjában, csendes, családbarát környezetben található, ahol a nyugodt életvitel és a jó városi elérhetőség harmonikusan találkozik.

A város zajától távol, mégis kiváló infrastruktúrával rendelkezik: üzletek, szolgáltatások és tömegközlekedés könnyen elérhetők.

A Soroksári kiserdő és a Duna közelsége különleges, természetközeli hangulatot biztosít, amely valódi otthonérzetet nyújt a leendő tulajdonosok számára.

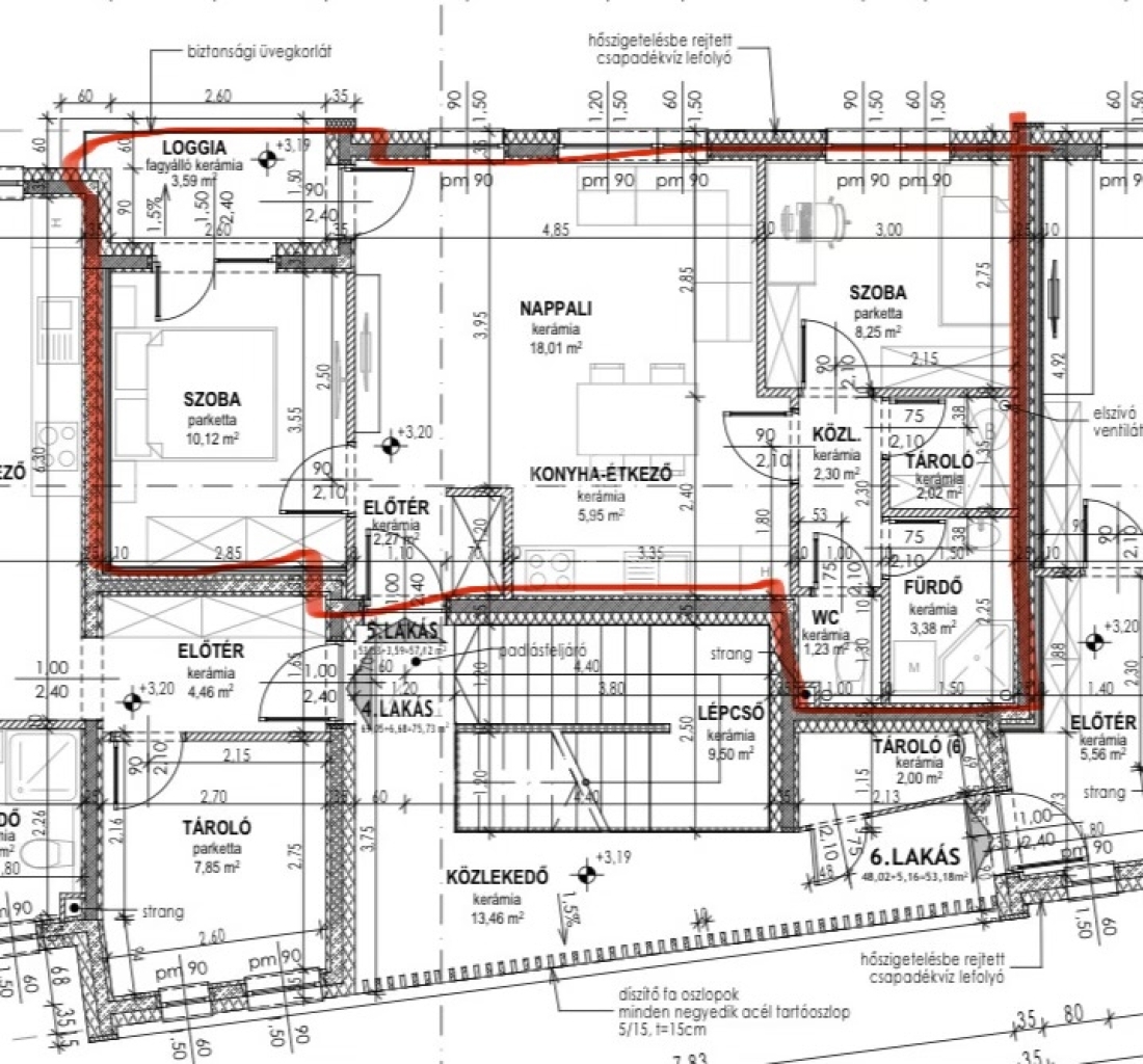
5. lakás 53,5 nm, Emeleti,
- tároló,
- előtér,
- szoba,
- szoba,
- Amerikai konyhás nappali,
- Fürdő,
- wc,
- közlekedő
- Erkély 3,5 nm.
- 82.750.000 Ft

További lakások az emeleten:
4. lakás: 109.500.000 Ft


MŰSZAKI TARTALOM

Szerkezet és szigetelés
• ProKoncept rendszerű falazat (25–35 cm vastagság)
• 15 cm vastag grafitos hőszigetelés a homlokzaton
• Lábazati és koszorú előtti hőszigetelés
• Talajnedvesség elleni bitumenes szigetelés
• Kiemelkedő hő- és hangszigetelési tulajdonságok

Tető
• Égetett agyag cserépfedés
• Alacsony hajlásszögű tetőrészeken korcolt fémlemez fedés
• Tartós, időjárásálló szerkezeti kialakítás

Nyílászárók
• Műanyag nyílászárók, 3 rétegű hőszigetelő üvegezéssel
• Jó hő- és hangszigetelési értékek
• Teraszajtók szintén 3 rétegű üvegezéssel

Fűtés – gépészet
• Levegő–víz hőszivattyús fűtési rendszer
• Felületfűtés (padlófűtés)
• Elektromos bojleres melegvíz-ellátás

Energia & jövőállóság
• Energiatakarékos, korszerű műszaki megoldások
• Napelem későbbi kiépítésének lehetősége
• Elektromos autó töltés előkészítése

Burkolatok, belső kialakítás
• Gipszkarton álmennyezet
• Burkolatok magas minőségben, választható kivitelben

Parkolás, környezet
• Telken belüli parkolás
• Minden lakáshoz saját autóbeálló
• Földszinti lakásokhoz saját kis kert
• Aszfaltozott utca, kiépített közművek

Az elkészült lakások lakhatási engedéllyel kerülnek átadásra!!!
Tervezett átadás: 2026. év vége!

Ütemezés: 20% foglaló, a fennmaradó összeg megbeszélés alapján.

Az ingatlan 3%-os Otthon Start hitellel is megvásárolható.


Irodánk 30 éves szakmai tapasztalattal áll ügyfelei rendelkezésére!
Bankfüggetlen hitelcentrummal, jogi hátérrel segítjük ingatlanvásárlását!
Várom szíves megkeresését, hívjon bizalommal!
Göbölyös Ágnes

Göbölyös Ágnes
Inserent

Rufen Sie uns mit Vertrauen

+36-30-397- Zeig!

Andere eigene Anzeigen

Immobilienbüro
GDN Immobilien Netzwerk - Csombók ELAN
+36 24 516 120