Casa Familiala Vânzare Gödöllő - Eperjes utca

Vânzare Gödöllő Casa Familiala
130 m2Suprafaţa 3 Camere
113 900 000 HUF Preţ
391628Identificare
Mai multe detalii

500 m2 Teren

Curte Vedere

Renovat Stare

Caramida Structură

60 m2 Balcon/Terasă

Gaz Încălzire

Confort 1 Confort

Parcare proprie Parcare

Excelent Transport public

Bucătarie deschisă

Existent Acces la grădină

1995 An construcție

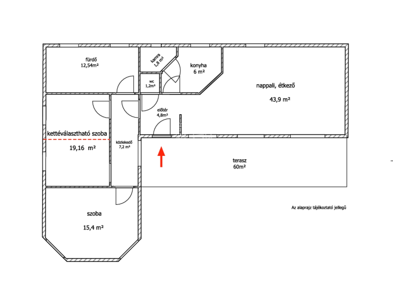
Eladásra kínálok Gödöllő kertvárosi részén egy önálló, felújított (2024.) családi házat.
Felosztása: amerikai konyhás nappali, 2 hálószoba, előtér, nagy méretű fürdőszoba mosdóval, különálló mosdó, spájz.
Mindezt 60 nm fedett terasz szegélyezi.

A házhoz 500 nm saját kert tartozik, az utcafront felől, előkerttel helyezkedik el. Az eredeti nagy méretű telek hátsó részén, egy nyaktaggal csatlakozó (ikresített) másik ház keül megépítésre, amely szintén önálló udvarral fog rendelkezni. és 4 méter széleskocsibejáró a megvételre kínált ház hátljánál fog húzódni, így biztosítva az intimitást.

Falazata 30-as téglából készült, amelyre 5cm dryvit került, az ablakok 3 rétegű favázas thermo üvegesek, elektromos redőnyökkel felszereltek, tetőszerkezete agyag cseréppel fedett, a födém szigetelve van.

Felújítása során prémium minőségű burkolatok, új nyílászárók, víz- és villanyvezetékek (+elosztódoboz) kerültek beépítésre. Az alap- és a szerelőbeton újra lett öntve, az aljzatot pedig 12cm vastag szigeteléssel, hőtükrös fóliával látták el. Falakat újra glettelték, festették és a helyiségek beépített gipszkarton állmennyezetet is kaptak LED világítással.

Fűtés: gázkazán
Melegvíz ellátás: villanybojler 120 l nagyságú.

Extrák:
- kamerarendszer
- riasztó
- 4 db klíma (2*6 és 2*3,5 kw)
- gondozásmentes alumínium kerítés, elektromos kapuval.
- locsolórendszer.

Mind autóval, mind gyalog kivló közlekedéssel bír.
Közelben bolt, iskola, óvoda, parkok, és minden, ami a mindennapi életvitelhez szükséges!

Birtokbavétel rövid határidővel!
Tekintsük meg együtt!
Fogarasi Viktória

Fogarasi Viktória
Agent de publicitate

Contactează-mă!

+36-70-371-Arată

Mai multe anunțuri

Agenție Imobiliară
GDN Rețea de agenții imobiliare - Csombók ELAN
+36 24 516 120