Частный дом Продается Budapest XIV. mикрорайон - Istvánmező csendes utcájában!!

Продается Budapest XIV. kerület Частный дом
400 m2Площадь 8 Комната
499 000 000 HUF Цена
395079Идентификация
Прочие данные

265 m2 Yчасток

С видом на сад вид

В хорошем состоянии Cостояние

Tégla Kонструкция

5 m2 балкон/терраса

Газ (циркуляционный) отопление

Dupla komfort Kомфортность

На улице, в общественном месте парковка

Kiváló Общественный транспорт

No Американская кухня

Есть Есть сад

1935 Год строительства

Délkelet Расположение

RITKASÁG!! KIVÉTELES ADOTTSÁGOKKAL, EGYEDI IGÉNYEKRE SZABHATÓ CSALÁDI VILLA ZUGLÓ EGYIK LEGKERESETTEBB RÉSZÉN!!

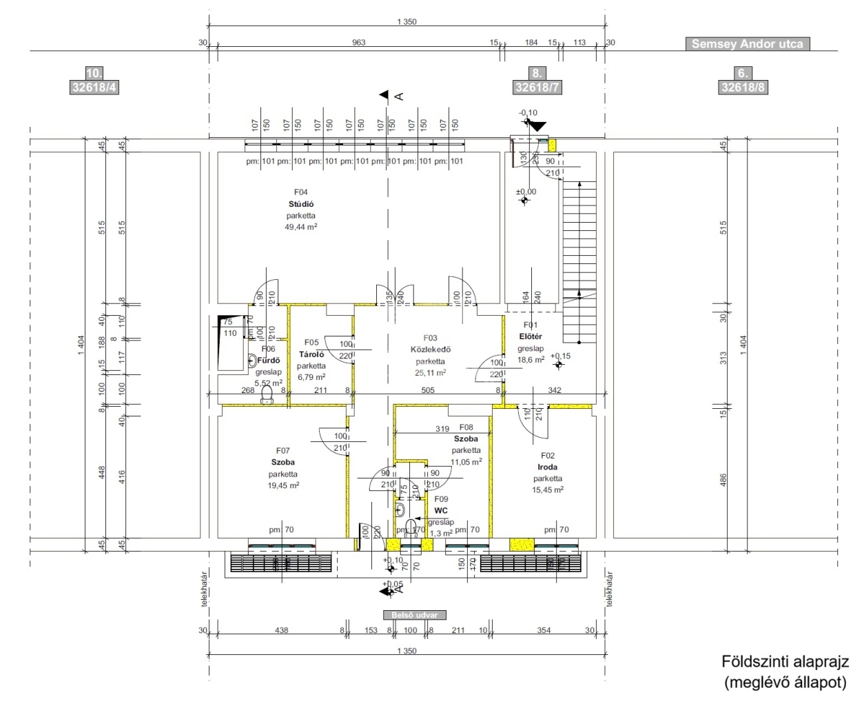
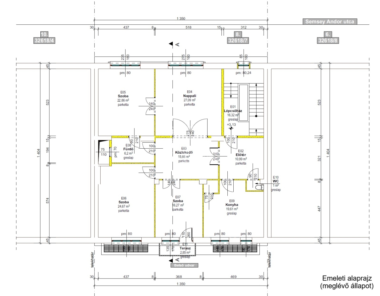
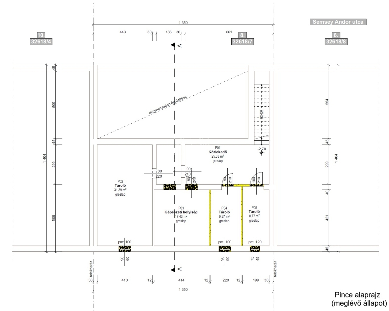
XIV. kerületben, Istvánmező városrészben, kiváló közlekedés és ellátottság mellett, Stefánia útból nyíló csendes, hangulatos mellékutcában, kiváló adottságokkal rendelkező, szintráépítéssel több lakás kialakítására alkalmas, 265 nm-es telekterületű, 1930-as években, Bauhaus stílusban épült, 100 nm-es alapterületű, 390 nm-es lakóterületű, 3 szintes, (pince 90 nm, földszint 150 nm, emelet 150nm) elegáns megjelenésű, statikailag és szerkezetileg egyaránt kiváló állapotú, 9 szobás, dupla fürdőszobás, napos-világos D-K-i fekvésű, korszerű kombinált gázkazán fűtésű, riasztórendszerrel felszerelt, tehermentes azonnal birtokba vehető családi villaépület eladó.

Az épület kiváló szerkezeti adottságának köszönhetően könnyedén alakítható, szintráépítéssel 4 db nagyobb, vagy akár 7 db kisebb lakóegység kialakítható! (teljes tervdokumentáció rendelkezésre áll)

Az ingatlan kiváló elhelyezkedésének köszönhetően, ideális választás lehet továbbá ingatlanfejlesztéssel foglalkozó beruházóknak, irodai tevékenységgel foglalkozó cégeknek, tervező irodáknak, bemutató-műteremnek, magánorvosi rendelőknek, akik egy jól megközelíthető, igényes környezetben keresnek professzionális munkateret.

A környék biztonságos infrastruktúrája és közlekedése kitűnően ellátott.

Az M2-es metró Stadionok megállója, 1-es villamos, és a 7-es busz Thököly úti megállói gyalogosan 5 -7 perc alatt elérhetők!!

További részletes tájékoztatásért várom megtisztelő hívását.
(hétvégén is)
EA
Makár András

Makár András

Звоните нам с доверием

+36-70-658- Показать

Другие объявления

Aгентств недвижимости
GDN Сеть недвижимости - Csombók ELAN
+36 24 516 120

Перезвоните мне