Совмещенный дом Продается Budapest X. mикрорайон - Zsombék utca

Продается Budapest X. kerület Совмещенный дом
171 m2Площадь 5 Комната
149 500 000 HUF Цена
392852Идентификация
Прочие данные

526 m2 Yчасток

С видом на сад вид

В хорошем состоянии Cостояние

Tégla Kонструкция

47 m2 балкон/терраса

Газ (кафельная печь) отопление

Dupla komfort Kомфортность

Частный гараж парковка

Dobrý Общественный транспорт

No Американская кухня

Есть Есть сад

1982 Год строительства

Megvételre kínálunk, Budapest X. kerületében, Újhegy csendes kertvárosi részében, egy jó elosztású 3 szintes ikerházat.

Az ingatlan a 80-as évek elején, téglából épült, hasznos alapterülete 171 nm, mely tökéletes életteret biztosít, egy nagyobb család, vagy akár két generáció számára is.

Az ingatlanhoz 526nm, saját telekrész tartozik.

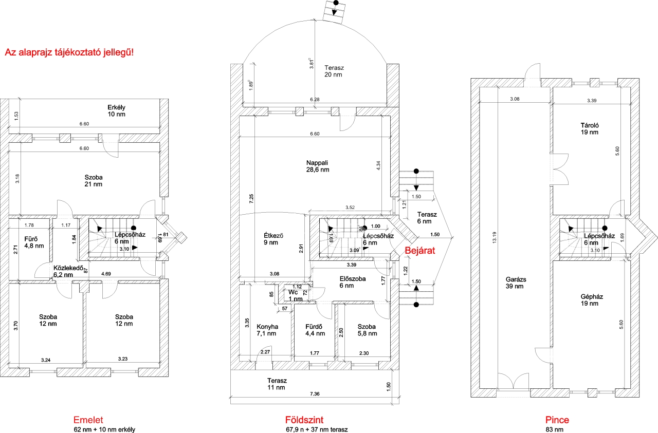
Az ingatlan beosztása:
Földszint -
-előszoba: 6nm,
-lépcsőház: 6nm,
-szoba: 5,8nm,
-fürdő: 4,4nm,
-wc: 1nm,
-konyha: 7,1nm,
-étkező: 9nm,
-nappali: 28,6nm
--------------------------
67,9 nm.
+ fedett terasz: 20 nm,
+ terasz 6 nm,
+ terasz 11 nm.

Emelet:
-lépcsőház: 6nm,
-közlekedő: 6,2nm,
-fürdő: 4,8nm,
-szoba: 12nm,
-szoba: 12nm,
-szoba: 21nm,
-----------------------
62 nm.
+erkély: 10nm,

Pince:
-garázs: 39nm,
-gépház: 19nm,
-tároló: 19nm,
-lépcsőház: 6nm,
---------------------
83 nm.

2015-ben egy nagyobb felújítás történt:
-festés,
-a fenti erkélyek beépítése,
-nyílászárók cseréje, (műanyag, redőnyös, szúnyoghálós)
-a ház külső szigetelést, színezést kapott,
-gázkazán, villanybojler cseréje,
-konyha felújítása.

A hátsó terasz, filagória, tároló, kerítés építése, 8 évvel ezelőtt.
A tárolóban, kézmosó+wc, fali csap került kialakításra.

Az ingatlanban, 3 db hűtő-fűtő klíma működik, melyeket 5 éven belül szereltek fel.

Riasztó rendszer van beépítve.

A fűtés gázkazánról működik, radiátoros hőleadással.

A beltéri ajtók, eredeti fából készültek.

Az ingatlan, saját mérőórákkal rendelkezik.

Az udvar parkosított, amiben 2db 35 éves diófa, és 1db 20 éves kajszi barack fa ad nyáron hűsítő árnyékot, és meghatározza a kert hangulatát.

Közelben iskolák, óvodák, bevásárlóközpont, minden egy helyen!
Kimondottan jó tömegközlekedés!

Amivel segítjük az Ön ingatlanvásárlását:
- ingyenes hitelügyintézés,
- jogi háttér,
- földhivatali ügyintézés,
- energetikai tanúsítvány,
- a vevő számára az ingatlanközvetítés ingyenes.

Irodánk 30 éves szakmai tapasztalattal áll ügyfelei rendelkezésére!

Várom szíves megkeresését!
Goldea Edit Anikó

Goldea Edit Anikó

Звоните нам с доверием

+36-20-588- Показать

Другие объявления

Aгентств недвижимости
GDN Сеть недвижимости - Csombók ELAN
+36 24 516 120