Частный дом Продается Ráckeve - Szent Vendel út közelében

Продается Ráckeve Частный дом
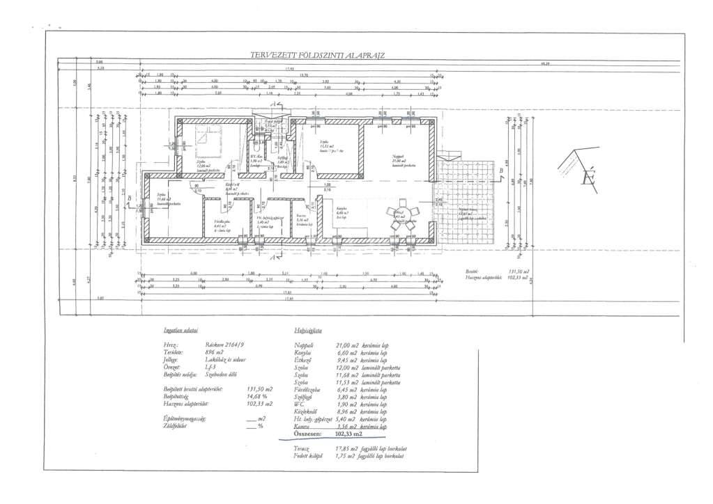
102 m2Площадь 3 Комната
81 600 000 HUF Цена
389103Идентификация
Прочие данные

836 m2 Yчасток

С видом на сад вид

Новостройка Cостояние

Tégla Kонструкция

Газ (кафельная печь) отопление

plným komfortom Kомфортность

Свое место парковки парковка

Médium Общественный транспорт

Американская кухня

Есть Есть сад

2025 Год строительства

Eladó új építésű önálló családi házak Ráckevén!

Most épülő új lakóparkban kínálunk megvételre új építésű, önálló családi házakat. 16 db telek van a kivitelező tulajdonában, melyek 800-1000 nm közöttiek, ön még választhat!

A választható ingatlanok alaprajz szerint:
1,- nappali + 2 hálószobás kialakítás nettó 102 nm - 81.600.000.-Ft,
2,- nappali + 3 hálószobás kialakítás nettó 110 nm - 88.000.000.-Ft,

A belső falak jelenleg még az ön igényei szerint alakíthatóak, illetve ha nagyobb alapterületű ingatlanra van szüksége az is kivitelezhető.

Műszaki paraméterek:
- porotherm 30-as tégla falak, 15 cm külső szigetelés,
- műanyag 3 rétegű nyílászárók redőnnyel, szúnyoghálóval szerelve,
- fűtést és a melegvizet gázkazán biztosítja padlófűtéses hőleadással,
- 3 db hűtő-fűtő klíma,
- burkolatok 10.000.-Ft/nm árig,
- beltéri ajtók 150.000.Ft/db árig,
- bejárati ajtó 300.000.-Ft -ig,
- szaniterek -Mofém,Grohe, vagy Alföldi tipusok kerülnek beépítésre,
- terasz burkolva,
- 1 autónak térkövezett beálló,
- oldalt beton kerítés, elől WPC,

Opcionálisan kérhető:
- Hibrid fűtésrendszer- a gázfűtés mellé hőszivattyút is szerelnek, ennek ára: 1.350.000.-Ft,
- 3 Kw napelem felszerelése 1.500.000.-Ft,
- belsőépítészeti munák a mellékelt fotók alapján, ennek ára megegyezés szerint.

A telkek közötti térkövezett utat ( 5 méter széles) , és a járdákat a kivitelező építi. A tulajdonos célja egy zárt lakópark kialakítása ahol a tervek alapján egy magánbölcsöde is épül.

Birtokbaadás: 2026. negyedik negyedéve.

Iskola, óvoda, orvosi rendelő, Penny, buszmegálló 5-10 perc sétával elérhető.

Amivel segítjük az Ön ingatlanvásárlását:
- ingyenes hitelügyintézés,
- jogi háttér,
- földhivatali ügyintézés,
- energetikai tanúsítvány,
- a vevő számára az ingatlanközvetítés ingyenes.

Irodánk 30 éves szakmai tapasztalattal áll ügyfelei rendelkezésére!

Várom szíves megkeresését!
Göbölyös Judit

Göbölyös Judit

Звоните нам с доверием

+36-70-269- Показать

Другие объявления

Aгентств недвижимости
GDN Сеть недвижимости - Csombók ELAN
+36 24 516 120