办公室 出租 Budapest XI. 市区 - Karolina út

出租 Budapest XI. kerület 办公室
165 m2面积 0 房间
1 200 000 HUF /月 价格
395413识别码
更多信息

街道 风景

已翻新 状态

Tégla 架构

电供热 暖气

在接到 停车

几层 Ground floor

没有 电梯

Bun 公共交通

2000 修建年

公关费用 80 000 HUF

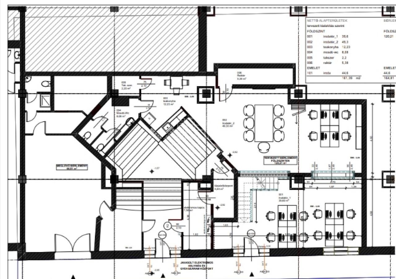
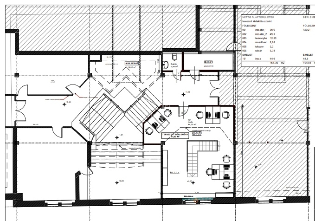
A karolina úton kiadó a fotókon látható, utcai bejáratú, belső kétszintes, 165 négyzetméteres teljesen felújított helyiség, iroda vagy más üzleti tevékenység céljára. A környék forgalmas, több üzlet is található a házban és a közvetlen környékén.
A felújítás jelenleg még folyamatban van, a fotók a tervek alapján IA segítségével készültek.
Amennyiben felkeltette érdeklődését és szeretné személyesen is látni, várom hívását a hét bármely napján.
Göbölyös Ágnes

Göbölyös Ágnes

随时给我们打电话

+36-30-397- 给我看

更多的广告

房产代理处
GDN 房产联盟 - Csombók ELAN
+36 24 516 120